BRIGHT BETA 55
Стабильность и эффективность
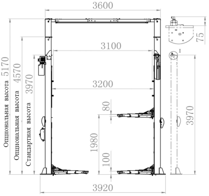
Представляем вам идеальное решение - подъемник с длинными трехсекционными лапами. Подъемник обеспечивает максимальную безопасность и надежность благодаря автоматическим предохранительным стопорам и парашютным клапанам в каждом цилиндре. Продолжительный срок службы обеспечивают нейлоновые подшипники скольжения, а защитные резиновые накладки предохраняют автомобили от повреждений. Кроме того, подъемник имеет стабильную конструкцию с плитой основания толщиной 20 мм и ненесущие стальные тросы для синхронизации.